No Caption No Caption No Caption No Caption No Caption No Caption No Caption No Caption No Caption No Caption No Caption No Caption No Caption No Caption No Caption No Caption No Caption No Caption No Caption No Caption No Caption No Caption No Caption No Caption No Caption No Caption No Caption No Caption No Caption No Caption No Caption No Caption No Caption

RMF-8 Zoned Property with Manufactured Home on Acreage

3216 E Road, Clifton, Colorado, 81520

Photos

Videos

* PENDING

$400,000

MLS: 05071-260001

1.54 Acres

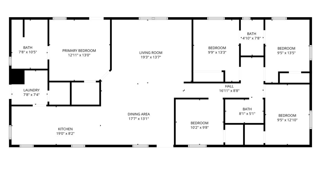
1,792 SqFt

4 beds

3.0 baths

What You Should Know

  • RMF-8 zoned property

  • Home For Sale in Grand Jct.

  • 5 bedroom, 3 bath manufactured

  • Manufactured Home no HOA

  • Convenient Clifton, Colorado

  • 1.5 Acres zoned RMF8

  • Valerie Siler 970-618-0636

  • No HOA, Manufactured Home

  • Fence

  • School

  • Central Air

  • Appliance

  • Sewer

Why You'll Love It

RMF-8 Zoned Property Offering Development Potential and Higher Density Residential Use in Mesa County, CO

Explore a great real estate opportunity with this 5-bedroom, 3-bath manufactured home for sale in Clifton, Colorado, offering 1,792 sq ft of single-level living space. Built in 2001, this home features an open floor plan with a spacious living room, dining area, and well-designed kitchen with plenty of cabinet storage. The primary suite includes a private bath, and the additional bedrooms provide flexibility for multigenerational living, guests, home office use, or rental potential — ideal for anyone needing extra room.

This property stands out thanks to its RMF-8 zoning in Mesa County, creating the opportunity for higher-density residential use or future development potential (buyer to verify). Whether you’re searching for an investment property, rental opportunity, or a primary residence with long-term value, this home offers excellent flexibility. Buyers looking for cash-flow potential, redevelopment possibilities, or affordable housing with upside will appreciate the options this zoning provides.

Conveniently located near shopping, schools, and commuter access to Grand Junction, this property combines space, affordability, and development upside in Clifton, CO. With a move-in-ready manufactured home already onsite, you can enjoy comfortable living now while exploring future possibilities. This is a rare chance to own RMF-8 zoned property with a 5-bedroom home in Mesa County, Colorado — bring your plans and vision.

Where You'll Find It

  • Street Address: 3216 E Road
  • City: Clifton
  • State: Colorado
  • County: Mesa

Videos

Valerie Siler

Broker Associate - Grand Junction Office
See Website